ChatsApp

Descripción

Proyecto en construcción con fecha estimada junio 2026.
Sobre Rambla Costanera esq. Calle Tacuarí, ubicación estratégica para disfrutar de la tranquilidad de la zona y estar cerca de todo: a minutos del centro de Carrasco, Colegios, centros comerciales, Aeropuerto, Zonamérica.

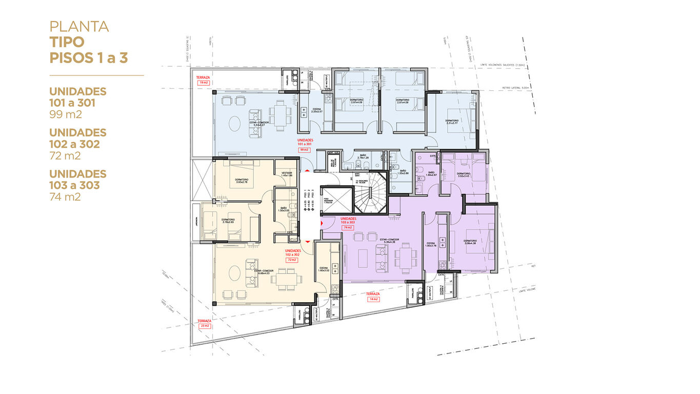
El Edificio cuenta con 4 pisos y un total de 11 apartamentos en donde se ha priorizado la calidad de las terminaciones, materiales y amplitud de los espacios.

– Aberturas de aluminio anodizado color oscuro, calidad superior, vidrios DVH.
– Cortinas de enrollar monoblock motorizadas en dormitorios.
– Preinstalación para equipos de aire acondicionado.
– Losa radiante hidráulica individual.
– Piso vinílico en listones, calidad superior, origen alemán.
– Pisos y revestimientos de porcelanato en baños y cocinas.
– Cocinas con mesadas de cuarzo y piletas de acero inoxidable; muebles bajo y sobre mesada.
– Terraza principal con parrillero y terraza lavadero.
– Riego automatizado.
– Previsión para cargadores de autos eléctricos.
– Paneles solares para complementar el consumo de energía en áreas comunes.

PROYECTO PROMOVIDO POR LA ANV.

UNIDADES DE 3 DORM
Apto 201 : 99 M2 ÁREA INTERNA (incluye muros) + 19 m2 TERRAZA CON VISTA AL MAR Y PARRILLERO: USD 435.000
Apto 301 : 99 M2 ÁREA INTERNA (incluye muros) + 19 m2 TERRAZA CON VISTA AL MAR Y PARRILLERO: USD 450.000

GARAGE USD 20.000
CONEXIONES 4%

Esperamos su contacto para poder brindarle mayor información.




Características de la propiedad

  • Habitaciones3 Habitaciones
  • BañosBaños: 2
  • SuperficieSuperficie: 99,00 m²
  • Superficie BalconesSuperficie Balcones: 19m²
  • GarageGarage: 0
  • ParrilleroParrillero
  • CalefacciónCalefacción:
  • Propiedad HorizontalPropiedad Horizontal
  • Pisos EdificioPisos Edificio: 4
  • Año de ConstrucciónAño de Construcción: 2025
  • AscensorAscensor
  • LavaderoLavadero
  • Propiedad horizontal: Si

Videos