ChatsApp

Descripción

Proyecto en construcción con fecha estimada junio 2026.
Sobre Rambla Costanera esq. Calle Tacuarí, ubicación estratégica para disfrutar de la tranquilidad de la zona y estar cerca de todo: a minutos del centro de Carrasco, Colegios, centros comerciales, Aeropuerto, Zonamérica.

El Edificio cuenta con 4 pisos y un total de 11 apartamentos en donde se ha priorizado la calidad de las terminaciones, materiales y amplitud de los espacios.

– Aberturas de aluminio anodizado color oscuro, calidad superior, vidrios DVH.
– Cortinas de enrollar monoblock motorizadas en dormitorios.
– Preinstalación para equipos de aire acondicionado.
– Losa radiante hidráulica individual.
– Piso vinílico en listones, calidad superior, origen alemán.
– Pisos y revestimientos de porcelanato en baños y cocinas.
– Cocinas con mesadas de cuarzo y piletas de acero inoxidable; muebles bajo y sobre mesada.
– Terraza principal con parrillero y terraza lavadero.
– Riego automatizado.
– Previsión para cargadores de autos eléctricos.
– Paneles solares para complementar el consumo de energía en áreas comunes.

PROYECTO PROMOVIDO POR LA ANV.

UNIDADES DE 2 DORM DESDE USD 280.000
Apto 001 : 68 M2 ÁREA INTERNA (incluye muros) + 102 m2 JARDÍN EXCLUSIVO AL FRENTE CON VISTA AL MAR: USD 280.000
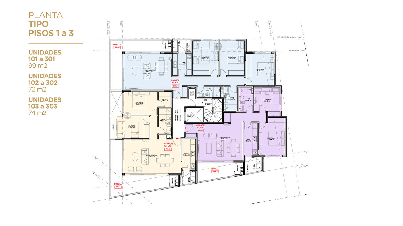
Apto 103 : 74 M2 ÁREA INTERNA (incluye muros) + 14 m2 TERRAZA CON VISTA AL MAR: USD 280.000
Apto 303 : 74 M2 ÁREA INTERNA (incluye muros) + 14 m2 TERRAZA CON VISTA AL MAR: USD 290.000

GARAGE USD 20.000
CONEXIONES 4%

Esperamos su contacto para poder brindarle mayor información.




Características de la propiedad

  • Habitaciones2 Habitaciones
  • BañosBaños: 1
  • SuperficieSuperficie: 74,00 m²
  • Superficie BalconesSuperficie Balcones: 14m²
  • GarageGarage: 0
  • ParrilleroParrillero
  • CalefacciónCalefacción:
  • Propiedad HorizontalPropiedad Horizontal
  • Pisos EdificioPisos Edificio: 4
  • Año de ConstrucciónAño de Construcción: 2025
  • AscensorAscensor
  • LavaderoLavadero
  • Propiedad horizontal: Si